您目前的位置:通知公告

关于做好清雪工作的通知

各二级学院:
    由于近日降雪给广大师生出行带来了诸多不便,请各二级学院及时组织学生做好分担区内清雪工作,具体如下:

具体要求:

1.各二级学院要高度重视此项工作,将清扫分担区积雪工作与学生思想政治教育紧密地结合起来,广泛动员、精心组织。

2.要求各二级学院将本单位分担区内积雪整齐堆放于绿地内或广场两侧,做好两个学院分担区间的衔接,保证及时彻底完成任务。

3.清雪工具由各学院自行联系后勤服务保障处领取。

4.各二级学院在开展清扫积雪工作中做好学生安全教育,确保学生安全。

 

 

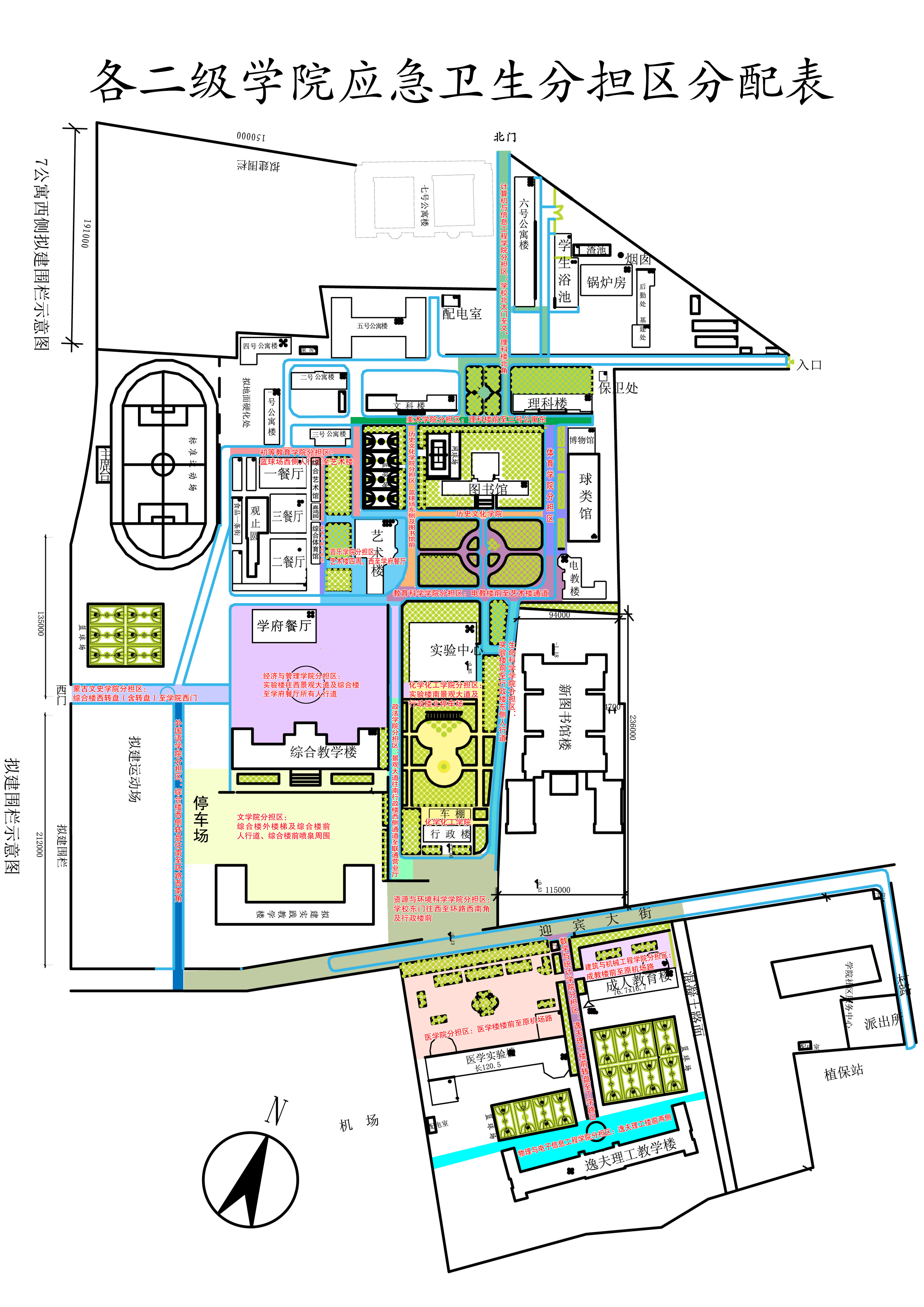
附件1:各二级学院应急卫生分担区分配表

附件2:各二级学院应急卫生分担区平面图

 

 

 

 

2015413